A criticial townhouse 以台南劉宅為例
原屋興建年代:1951 改建年代: 2014-2016
土地面積: 70m 平方 建築面積: 97m 平方
工程費用:300 萬 NT

如同保羅.里克爾(Jean Paul Gustave Ricœur)《歷史與真相》所揭,共相化(universalization)的現象是人類走向現代的一大進展,同時也形成一種難以言詮的毀滅。在全球趨同的社會洪流裡,現代建築仍有可能做出積極的抵抗?在台灣建築界的嘗試並未消失。我們試圖以在地「民居」類型的舊宅作為地域智慧的根據,試圖以「臨界建造」為核心精神在當代生活的需求與現代建築的知識、各地的氣候下,探問現代地域住宅的可能性。這與肯尼思.弗蘭姆普敦(Kenneth Frampton)於1996年補充的批判性地域主義意涵有異曲同工:它以在文化間隙(cultural interstices)中茁壯之建築抵禦來自環球文明之衝擊(the optimizing thrust)。

一.概述
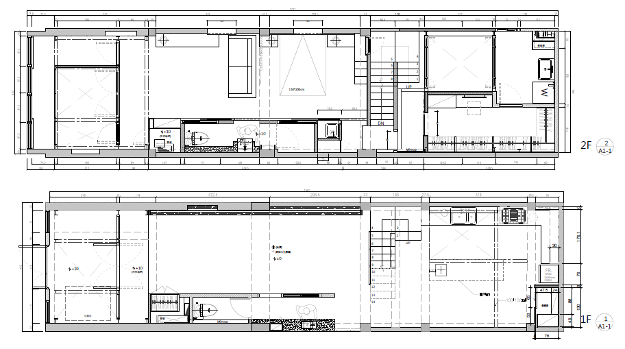
2.1.1舊城郊之域:本案處於台灣台南市舊聚落五條港與安平港之間,是百年前城市的外緣地帶,早期此區經濟狀況應屬於中下,故居住密度較高,為面積偏小之連棟住宅。原建築是屋齡73年(1951新建、1963增建)的舊宅,2014改造時已荒廢年餘。是日式屋架斜屋頂與台灣閩南式加強磚造街屋、混合早期鋼筋混凝土的構造,為兩層樓及部份三樓,建築寬約4m、長17.5m,僅約100m平方。




2.1.2改造的原則:打開聯合在為「最佳的價值」進行「最少的建造」的前提下,此案決定了幾個前題:1.最大可能性的保留既有構造。2.容易辨識的新舊構造。3.回應原有街屋格局。4.舒適的光、音、熱住宅。5.在家屋的日常感裏創造異常(Uncanny)。

二.創造「臨界的格局」
2.2.1原始格局:平面為座北朝南,如大多數此時期之連棟街屋一樣,是透過一室內狹窄走道、樓梯串連起7個房間。一樓最前面有一客廳/餐廳與最後面有一廚房/廁所/浴室的複合空間。環境擁擠而昏暗,僅南向臨小巷的房間光線較佳。垂直格局則分為前、中、後三段,前段為兩層樓雙斜屋頂、中段為三層樓雙斜屋頂、後段為兩層樓單斜屋頂。改造的主要手法如下:


2.2.2水平翻轉格局:保留原長向隔間牆形成大空間裏的狹長盒子
將原一、二樓西側狹長之室內走道改成服務空間,成為廁所及儲藏室等功能,即流通翻轉為封閉。並將原一、二樓房間隔間牆全數拆除,將封閉的房間開放空間,得以引入光線,即封閉翻轉為流通。

2.2.3垂直可視三層:保留最大範圍之樓板而能直視完整建築的三個樓層
經由仔細檢討仰角視線後,於建築物二樓的前後兩端,在最小的切除範圍內,切穿出兩個天井:一方面可擴大前、後方光線在室內的覆蓋面積,並創造室內連續通風路徑。一方面更可讓人在一樓視線穿越二樓,並可看見三樓的舊立面。



三.創造「臨界的內外」:在原始建築外牆、屋頂與新的改造中,創造一個中介層。

2.3.1雙層屋頂:在既有水泥瓦屋頂外側再新設一鋼構屋頂,形成一具阻熱、可採光的雙層屋頂。並藉由調整新設屋頂坡向,形成有效接續排流雨水的屋面。

2.3.2雙層外牆:保留既有外牆,內退設置鋁門窗之隔間,於建築物前後創造出介於室外與室內間之中介空間。可有效引入光線且阻隔噪音,並形成一隔熱層。

四.魔幻寫實的住宅:既日常又異常的生活空間
2.4.1從現實出發:在上述基於防水、隔音、引光以創造舒適的住宅環境外,此宅亦形塑了一個魔幻寫實般的生活經驗:1.格局的臨界:進入看似狹小的街屋後,卻看到了深遠而有層次的客廳與餐廳。流通的走道成為了封閉的服務空間、封閉的房間成為了開放的起居室。並保留了舊隔間打除的痕跡,如此在新格局中似乎還能看見舊貌。2.內外的臨界:透過前後的中介空間的隔音效果,人從喧鬧的市街進入了安靜的室內。更透過中介空間的植栽綠意以及一、二樓走道既有的木窗、三樓可室內直視的原屋瓦面、二樓起居室如戶外般的大面積採光,讓人在室內彷彿置身室外,產生了室內、外的模糊感。3.時間的臨界:因著裸露清楚的三時期構造所產生的歷史與現代並置感,以及戶外譟熱流動與室內安靜靜止的時間對比,讓人產生了時間流裡的奇異感。


2.4.2Critical condition危險的處境:希臘神話中,代達羅斯告誡兒子伊卡洛斯:「飛行得過低,蠟翼會因海洋的霧氣而使飛行受阻;而飛行得過高,則會因強烈的陽光而灼燒,造成蠟翼融化。」這種處境與打開聯合的設計探索極其類似。
一個設計是一場研究。除了學院內的創作外,現實裏的設計工作也應這樣看待,正如我們小心衡量著「臨界」的「關鍵」建造,這個過程是危險的。期待我們也像諸君一樣能持續研究並設計,而且最終還能飛到彼岸相見。
