臨界建造Crititcal Building
打開聯合 劉國滄 K .C.Liu 2024 /6
真正的寫實主義者是夢想家--費里尼Federico Fellini










壹. 何謂 臨界建造 Critical building
批判性地域主義(Critical Regionalism )一詞是由肯尼思.弗蘭姆普敦(Kenneth Frampton首先於1983提出,而後擴及社會學等領域。此詞經過了40年已成建築界耳熟能詳的觀念,但我們不妨從根本處談起。「Crit」的字根有二是來自於希臘文Kriticos-提問、分析、敏銳的判斷,以及 Kriterion-標準。有趣的是,原古意並無「批判」的意思。依當今韋伯辭典所示,「Critical」這個字有以下解釋:批評的、關鍵的、臨界的、抵抗的、提問的、分析的、……。
事實上,這是一個醫學、科學界比建築界更常用的字眼,是關於危險的、臨界點的處境。綜此,我想從Critical的兩組意涵:1.臨界的與關鍵的,以及2.提問的與分析的,來對應說明打開聯合在建築學實踐裡的思考,我們自稱為「臨界建造」-「Critical building」。
一.Critical building:臨界與關鍵的建造
1.1.1「臨界建築」的問題:即尋求在「此」與「彼」之間,能否以關鍵的作為使二者平衡共存:包含此類與彼類、幾何與意義、人工與野生、日常與非常、內裡與外部、其上與其下、舊跡與新貌、建造與拆解、部分與整體、平面與立體、結構與填充、當權與弱勢之間。難題往往是如何在現實中把握兩者恰當的臨界分寸。巧妙的介入常常能引發思考,而驚喜與疑問將伴隨而生。藉此,我們對未來世界的想像或能打開。
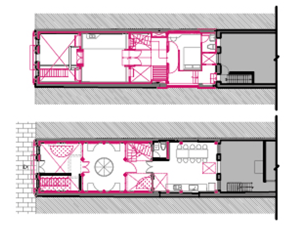
臨安路住宅:




西賢六街住宅:




1.1.2嘗試關鍵的建造:不論成果的樣貌(Shape)如何,打開聯合離不開以下目標:為「最優的價值」進行「最少的建造」;為「最少的建造」進行「最大的研究」。打開聯合藉此企圖帶著「未來」的靈感、回望「過去」、進行「現在」的探索。
打開聯合工作室:




神農街辛花園:




漢華工作站:




二.Critical building:提問與分析的建造
1.2.1以概念對現實提問:任何概念的描述與實現,都是我們此時此地對於世界及自我的認知與表達,人造環境(Built Form)的成形亦是如此。我們在人造環境裏的作為正反應了我們對於世界及自我的認知。打開聯合試著用各種方式、規模介入環境,探問什麼才是建築?
1.2.2從建築之理出發:建築必須是具體有形的,其「體」是為了堅固、實用與美觀。由實而築,借築求虛,活用其虛,並由用而感,其「形」因構築、幾何、意義而成。打開聯合依循此理,但逆思其間。建造是物理與心識的呈現。諸建築物皆有其因,並各從其類,其中各地自然長成的匿名民居尤為珍貴。打開聯合分析傳統民居穩定的類型,嘗試回應當代生活的需求與現代建築的知識、各地的氣候,藉以試探現代地域住宅的可能性。
永福路蝸牛巷:




打開嵩口:




三.「魔幻寫實」式的「民居」
1.3.1魔幻寫實主義(Magic Realism):一種文學、電影的敘事技巧,局部的因果關係看起相對上是合乎常理的,但逐一推衍出的整體卻不合乎熟悉的現實。它與現實參照,但卻並非僅止於現實的重複。頓挫再現(representation)來自於似曾相識(現實經驗)與他者(異質介入)的互文,而此手法正是打開聯合在建築創作上苦苦思索的主題。
1.3. 2民居十例:而在地「民居」類型的舊宅改造正是打開聯合持續關心的主題。在此以十個案例說明在「臨界」的處境下尋找一最適切的「關鍵」建造,並以台南劉宅作詳細的解說。
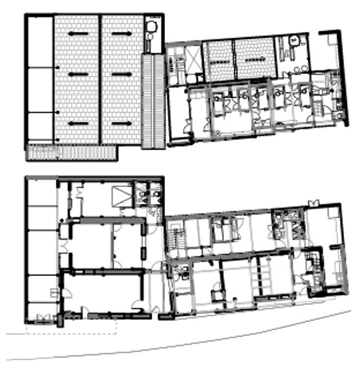
金華街日式宿舍:




百姓書屋:




嵩口鎮政府交流客棧:







